Nu har det gått ett helt år sedan jag började bygga förra gången, så nu tycker jag att det dags att bygga ett nytt litet hus, en kombinerad gäststuga och bastu. Vi har ett perfekt läge på tomten att bygga vidare på.

När våra barn var små jobbade jag/vi jämt och ständigt och barnen säger ofta, ”Vi har uppfostrat oss själva!” Våra barn har fortsatt i samma anda och jobbar alldeles på tok för mycket, så tycker i alla fall mor och far.
Nu har vi bestämt oss för att våra barnbarn skall stortrivas, när de hälsar på hos farfar & farmor, morfar & mormor. Nu ska de kunna sova över med kompisar i gäststugan, bada bastu, ta ett vinterbad, ta båten ut och fiska och bara ha roligt. Naturligtvis kommer Birgitta och jag att koppla av med ett bastubad också.
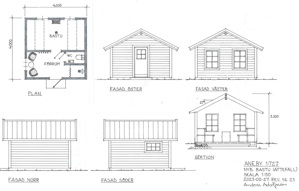
Jag planerar att göra alla markarbeten senare under hösten och bygga under vintern eller våren. Jag kommer att bygga med plank 3″6 (75×150). Det roligaste är att jag fått ett Startbesked efter alla turer som jag varit med om.
Ja tänk att Torebrings har alltid nåt på gång i byggen!👍
Men det är ju kul att ha nåt att se fram emot oxå👏
Ha det gott/SommarKramar
Det underlättar att vara aktiv, fast inom vissa gränser. Jag gissar att ni kommer att bo i den när den står klar.
Sommarkram
Så skoj med nytt bygge, gästhus och bastu. Kul att barnbarnen kan få ett eget krypin när de kommer på besök.
Ett otränat öga som mitt (som ingen vana har av lösa ritningar) ställer sig frågan om bastun är större än rummet där några sängplatser ska få plats????
Inne i bastun, som är drygt 2 m lång, har jag 2- 4 sittbänkar i vanlig ordning. På väggen har jag tänkt mig en kraftig sängbotten att fälla ned, som jag sedan lägger på kraftiga bäddmadrasser. När inte bäddmadrasserna* används, förvarar jag dem ute i förrummet. (*Inte inritat på denna ritningen)
Aha! Då blir det plötsligt en helt annan plats….