
Jag sökte på nätet flera gånger i går kväll, efter protokoll från Samhällsbyggnadsnämndens möte i går eftermiddag. Jag hittade inget publicerat protokoll. I dag på morgonen ringde min arkitekt. Jag vill gratulera dig Matts, till bygglov på din nya tomt.
Jag har sökt åtta olika byggnadslov de sista åren. Tre av dem har jag kunnat förverkliga, resten har överklagats. Jag satt tyst en lång stund. Vart tog du vägen? frågade Anders. Säg det en gång till sa jag. Du måste tro mig, det är sant sa Anders. Under tiden vi talades vid, kom bekräftelsen från Aneby Kommun. Det är sant! Det är verklighet! Vi kan börja bygga! Glädjetårarna är inte långt borta!

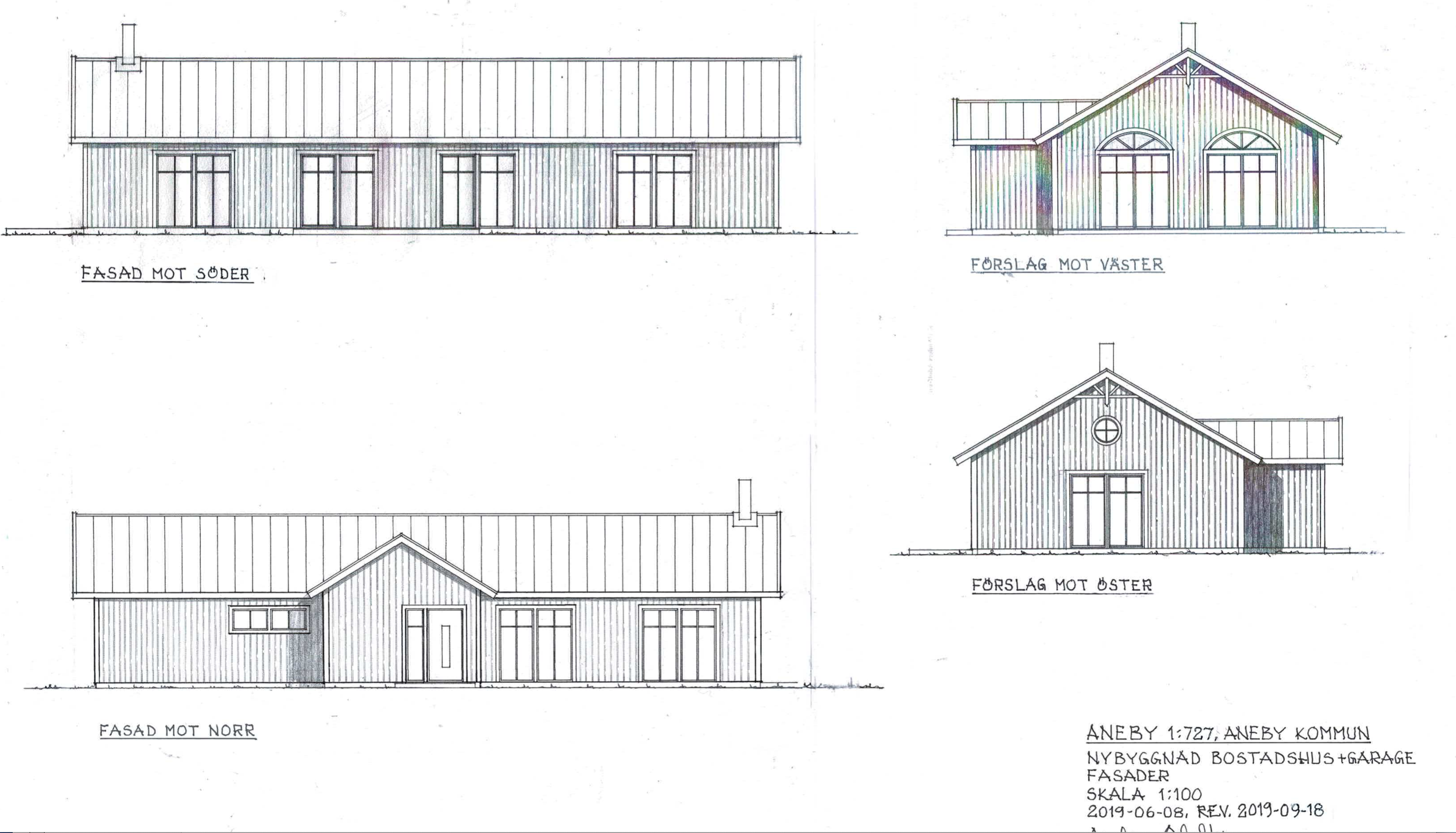
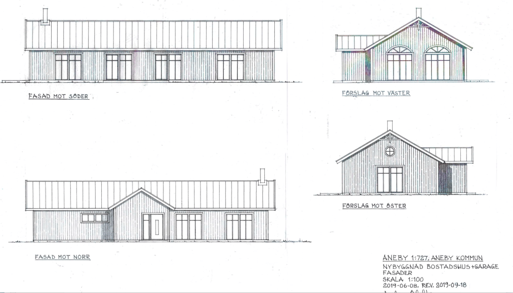
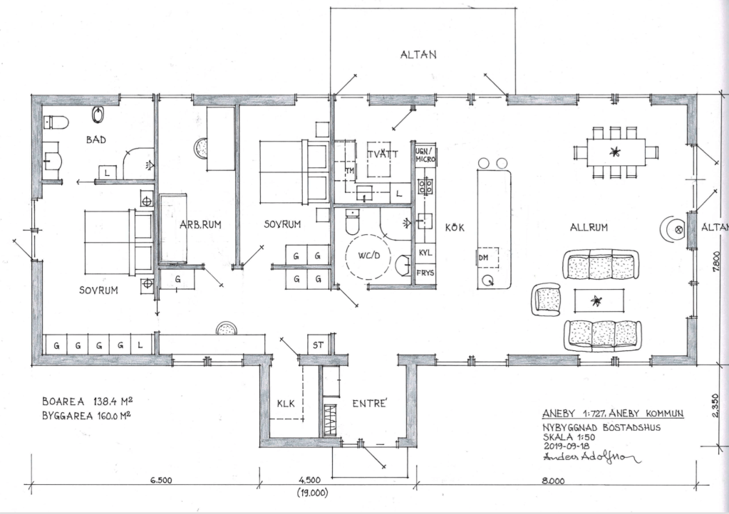
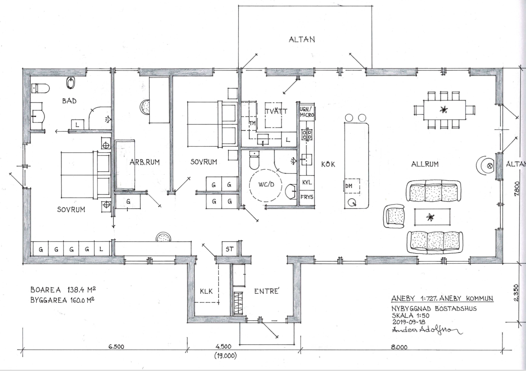
Vi kommer att få arton fönster och fönsterdörrar som är 1 x 2 meter. Vi får altan utanför vårt sovrum mot öster, altan utanför köket mot söder och en altan mot väster, mot sjön och solnedgången.


Vi har fått en fantastisk tomt, ett hundratal meter från Anebysjön. Tomten är stor, hela 1650 m2. Till detta kommer ganska mycket kommunal mark i anslutning till tomten. Vi kommer att ha runt 90 meter utmed Framtidsvägen. Utöver detta gränsar tomten till bilvägen ned till stranden.

Lite konstigt tyckte jag, han började med att bära ut allt ris från avverkningen. I morgon återkommer jag med mera bilder. Nu får vi börja röja stubbar och förbereda utsättning av husen.
Å vad glädjande. Grattis till dig och Birgitta!
Hälsa dina ägare & tacka! Husis! Det är nära fem år av drömmar som förverkligas.
Ett stort ”Grattis” till er goa vänner,så glada vi blir för er skull!
Nu kan det äntligen börja hända saker med edra drömmar!
Grattis-Kramar fr Dalom
Tack, tack, vi är så glada och det skall bli så spännande. Fantastiskt att vi fick tillbaka vår rätta tomt.
En stor byggkram
Va kul grattis! Vilken läge huset är ser så trevligt placerat på tomten. Detta kommer att bli bra för er. Ni är de andra vi känner till som bygger nytt i vuxen ålder. Lite yngre än de tidigare de var 80 år.
Tack, tack! Det finnas inte ord för hur goda och tacksamma vi är, över att ha fått den rätta tomten. Nu kommer hus och garage till sin rätt. En familj till bygger i Aneby som är 80 +. Vi är ju bara 70+.
Så roligt! Och ett stort grattis! Så spännande och fint att se ett nytt hus växa fram, ser verkligen fint ut allt och ska kika in när det är på gång med bygget. Roligt med förändringar och att våga satsa på nytt. Trevlig helg!
Tack, tack! Detta är busroligt, en stor dröm sida 2015, med just detta hust detta huset och på denna tomten. Välkommen in på husesyn. En trevlig helg till dig också!