Sista ritningarna garage & ställplats

22 01 2016

 

Skärmavbild 2016-01-22 kl. 18.06.29

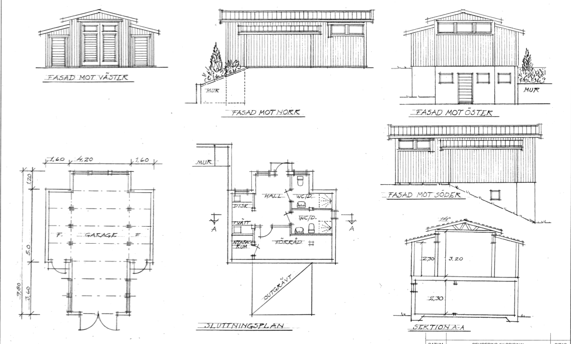
Garage till vår husbil i plan 1. Servicebyggnad till Ställplats i bottenvåningen.

Är ni trötta nu på alla mina inlägg om ställplatsen, sluta läs här! Bara för att jag bygger bottenvåning till mitt garage, var jag tvungen att komma in med nya ritningar till Tillsyningsnämnden i kommunen. Idag fick jag dem av min gode vän, arkitekt Stig Johansson. Vad jag förstår på Stig, tycker han att detta är lika roligt, som jag själv tycker att det är. Stig fyller snart 80, men sprudlar av kreativitet och nytänkande. Hoppas jag är lika pigg själv om tio år. Nu finns två rymliga, tillgänglighetsanpassade toaletter & duschar, tvätt & diskmöjligheter i bottenvåningen under mitt garage. Jag har höjt frigångshöjden till 3,20 inne i garaget. Tänk bara att stå under tak och lasta husbilen för resan. (Klicka upp bilderna för att se bättre)

Ny ritning

Sista Ställplatsritningen.

Nu är det förra servicehuset borttaget och ger plats för ytterligare en större husbil. På denna ställplatsen är det minst fyra meter mellan varje bil. Nu ska jag skicka in en ny ansökan om dispens från plan- & bygglagen som anger villabebyggelse på tomten. Vi har säkert mist 50 tomter i kommunen, som står obebyggda sedan flera år, så varför skulle någon vilja bygga här nu. Denna tomt har varit obebyggd i mer än 40 år. Min gamla devis är: ”Det finns inget som är omöjligt, förrän motsatsen är bevisad”. Min nya devis är: Jag låter inte ljudet av andras åsikter överrösta min inre övertygelse”. Detta skall bli bra, det finns inget annat på kartan!

 


Åtgärder

Information

17 responses

22 01 2016
Profilbild för Imelda Imelda

Man skall aldrig ge upp sin dröm! Kämpa på!

22 01 2016
Profilbild för Matts Torebring Matts Torebring

”Campen” kommer aldrig att ta slut, förrän allt är på plats.

22 01 2016
Profilbild för Deciree Deciree

Åh vad du kämpar på. Fortsätt med det…sätt dom kommungubbarna/tanterna på plat. Vi hejjar på dej. Kram 🙂

22 01 2016
Profilbild för Matts Torebring Matts Torebring

Jag hoppas att kunna hälsa dig välkommen att hälsa på så småningom. Kram

22 01 2016
Profilbild för Maggan och Ingemar Maggan och Ingemar

Ska bli spännande att besöka denna ställplats 🙂 Vilket fantastiskt initiativ du tagit Matts. 🙂

23 01 2016
Profilbild för Matts Torebring Matts Torebring

Känns lite som pensionering, men ändå inte släppa allt, utan har kontakt med många husbils turister. Kram & Välkomna så småningom

25 01 2016
Profilbild för Henrik Hagström Henrik Hagström

Ibland är det bra med envisa gubbar, är själv en 🙂

22 01 2016
Profilbild för Lennart Lennart

Kämpa på!
En vacker dag kommer jag och assisterar om det är rätt färg i kommmunstyret!

Kram

23 01 2016
Profilbild för Matts Torebring Matts Torebring

Bra idé, synd att du är borta så länge. Kram

23 01 2016
Profilbild för Kenneth Risberg Kenneth Risberg

Följer detta med stort intresse och håller alla tummar för er.

23 01 2016
Profilbild för Matts Torebring Matts Torebring

Tack & Välkommen, när jag lyckats få det klart. Ha det gott!

23 01 2016
Profilbild för Helena FREEDOMtravel Helena FREEDOMtravel

Stå på dig! Har du kollat med andra kommuner som faktiskt har ställplatser?Hur har de definierat det och hur har de fått igenom det med kommunen?

23 01 2016
Profilbild för Matts Torebring Matts Torebring

Rickard, Södra Hamnens Ställplats i Motala har till och med offrat en hel arbetsdag för att vara med på presentationen i vår kommun. Han hade också turbulens i början med sin ställplats, men där förstod kommunen det på ett annat sätt.

Jag har sökt på bland annat på Svenska akademins ordlista, men ordet ställplats finns inte. Då finns det inte heller byråkraternas värld. Camping finns och det är lika med övernattning i husvagn eller husbil. Då kan den byråkratiska världen, inte se detta som en ställplats, det blir en camping. Sorgligt!

Din blogg är så stor och har så mycket större spridning än min. Ta gärna upp frågan om alla ställplatser är campingar? I så fall måste de flesta stänga, eftersom de oftast saknar kök, uppehållsrum, tvätt- & diskmöjligheter. Ta gärna kontakt med Boverket för faktauppgifter.

Ämnet har redan haft stor genomslagskraft på olika forum som, Husbilsklubben, Husbilskompisar, Bürstnerklubben och Facebookgrupper. Tråkigt nog spårar alla forum ur och tappar tråden.

Jag kommer nu att förtydliga, fotodokumentera skillnaden mellan camping & ställplats, skicka nya ritningen till Tillsyningsnämnden i vår kommun, samt söka dispens från plan- & bygglagen under två år, med möjlighet till förlängning ett år i taget. Välkomna när jag lyckats bli klar!
Med vänlig hälsning Matts Torebring

23 01 2016
Profilbild för Lars Permeln Lars Permeln

Matts, ide’n är jättebra, ritningarna är mycket bra, jag håller båda tummarn.

23 01 2016
Profilbild för Matts Torebring Matts Torebring

Tack Lars! Visst är ritningarna kanonbra. Ha det gott & Tack för allt stöd!

23 01 2016
Profilbild för Rolle o Carina Rolle o Carina

Kan inte bli bättre Matts,fattar dom inte ställplats i kommunen??
Då kan dom lika gärna avsäga sig uppdragen dom har!

Bara att strida vidare….Lycka Till Kram

24 01 2016
Profilbild för Matts Torebring Matts Torebring

Tack Rolle, nu är jag själv jättenöjd också. Nu måste det gå vägen. Kram snö

Lämna en kommentar