
Det har varit en lång process och många ritningar, men nu är vi på G …
Jag är stolt över att Lars-Evert Johansson, JL Byggtjänst, Eksjö ville hjälpa oss med detta, för deras del mycket lilla bygget. JL Byggtjänst är ett riktigt stort byggföretag och omsätter flera 100 milj. Vi har haft ett fantastiskt gott samarbete på flera stora reparationer och ett nybygge på jobbet. Jag frågade försynt om hjälp med detta lilla bygge. Självklart bygger vi upp detta åt dig sa Lars-Evert. Här är Lars-Evert själv med och levererar virke och instruerar sina 2 duktiga snickare.

Jag har lagt ut lite skydd runt stugan, för att skydda min nya gräsmatta.

Det ser först riktigt högt ut, men så noggrant jobbat …


På torsdag monteras dörren och fönstren. Det ser skräpigt ut nu, men jag har själv bett om att få städa upp.

Jag får redan nu en wooow känsla, av att sitta här inne mot väster, känna takhöjden, som mest 3,3 m, se månen spegla sig i Anebysjön och bara njuta av ett varmt bastubad.

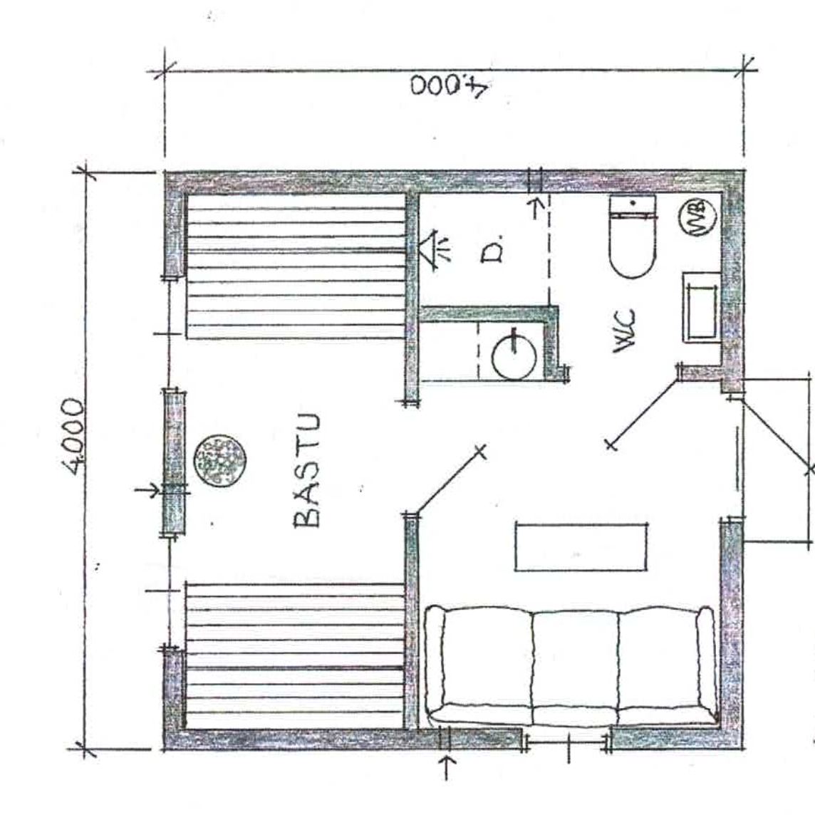
Bastun blir nästan 4 meter bred men bara 1,5 m djup. Jag ska även få rum med en skön bäddsoffa, vattentoalett, dusch, en minikyl, kokplatta, samt en diskho.
Min arkitekt Anders Adolfsson skall ha ett Stort Tack för allt sitt tålamod.
Birgitta & Matts hälsar alla välkomna som vill komma och hälsa på oss, kanske bo i stugan, fiska i Anebysjön, eller bara gå någon av alla vandringsleder nära oss.
En trevlig Valborg till er alla.
Blir ju underbart Matts detta fina bygget av kunnigt snickarfolk!
Och sen fina utsikten ner mot Anebysjön oxå så klart.
Klart vi vill komma och övernatta hos er,ska bli sååå kul!
Varm VårKram
Jag tror att det kommer att bli betydligt bättre än jag hade tänkt från början, nu när jag ser formen på plats. Det höga taket och de stora fönstren ned mot sjön, kommer att skapa en häftig rymd.
Det kommer att komma flera olika hantverkare innan allt är på plats.
Naturligtvis kommer ni att vara våra hedersgäster. Välkomna!
Framtidskramar
Det blir säkert kanonbra och skönt att leja bort snickerierna till kunnigt folk. Då får ni ju bra övernattningsplatser när ni får gäster och möjlighet att själva kunna njuta av ett bastubad en kall vinterkväll…
När jag var hemma på lunchen hade både fönster och dörr kommit på plats. Nu kan jag t.o.m. drömma om gråa, kalla höst- & vinterkvällar och en varm bastu
Det blir jättefint Matts och toppen med högt i tak, det ger sån rymd och luft på ett annat sätt. Ni har ju det i huset så ni vet. Vi har så i fritidshuset och det känns så härligt. Lika hos dottern, älskar det huset.
Och fantastiskt med den utsikten, vad fint ni får. Och klokt ni tar hjälp och roligt att det finns duktiga att engagera till allt.
Ha det fortsatt fint. Vi har haft ett par dagar med underbart väder. Tack och lov. Kramar.
Det blir så Himla bra med just med detta taket, det blir som en liten minikyrka. Helt fantastiskt! Sluttande tak även inne på toa, kommer att påminna om barndomens dagar. Även fönstren blev så Himla mysiga. Förlåt ”svordomarna”.
Välkomna att hälsa på oss så snart alla pusselbitar är på plats!
Framtidskramar