
Ni som har läst min bok har också läst om pappas liv som bonddräng och livet i en kall drängstuga utan el, med ett handfat vatten på en kommod, bara en säng att sova i och en kamin att elda i.
Hade pappa sett detta hade han trillat baklänges. Idag har vi monterat 2 golvbrunnar, dragit in avlopp som går till en tank med kvarn, samt dragit ut en vattenledning. Det krävdes många funderingar innan vi tillslut valde riktiga toalettstolar. (Det var ju därför vi valde Concorde husbuss, vi vill ha det lika bra som hemma.) El går vi in utvändigt med från baksidan. Nu är det färdigt för att gjuta betongplattan

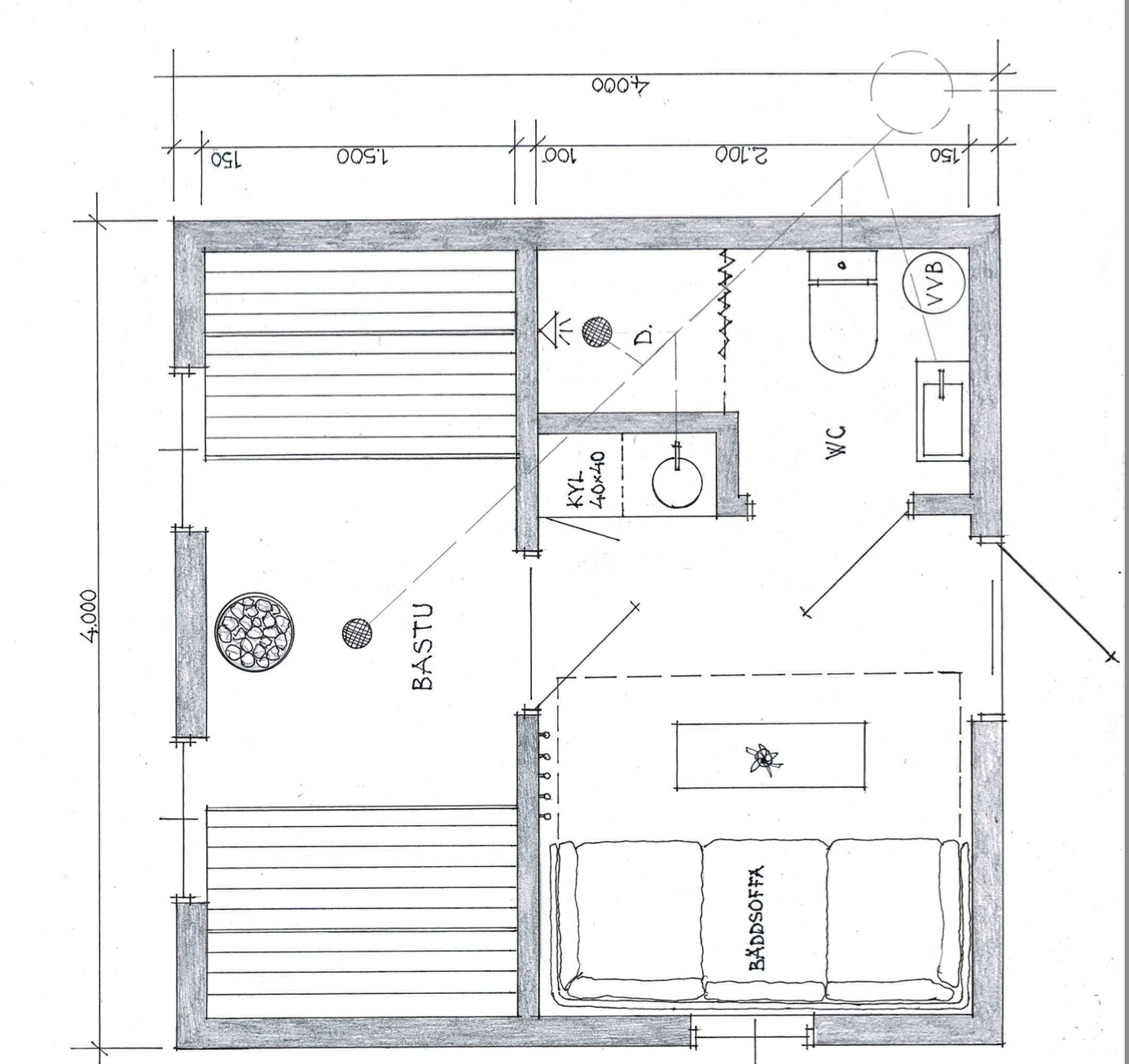
Enda stället för att få avlopp och vatten var att borra oss ut genom betongplattan i teknikrummet. Naturligtvis stötte borren på armeringsjärn.

Väggar och tak blir identiskt som på Friggeboden, fast Drängstugan blir lite tjockare väggar 3″ x 6″. Utanför entrédörren blir ytterligare liten altan för att kunna njuta av morgonkaffet.
Varför har jag då bytt namn på stugan från Gäststuga till Drängstugan. Dels orkar jag så lite själv just nu att jag får köpa de flesta tjänster samt resten är nostalgi, en Drängstuga på landet.
Ja tänk om edra förfäder hade fått vart med om dessa fina boenden ni har nu mot dom som fanns i deras uppväxt!
Visst har det gått framåt i boendet tack och lov mot för då.
Det ska bli trevligt att få komma sen och provbo eran fina
Drängastuga när den tiden kommer Matts o ch Birgitta 😀👍🙏
Ha det gott/HöstKram
Mina föräldrar levde sitt liv ända fram till 60 årsåldern, utan att ha toalett eller dusch inne. Helt ofattbart idag. Själv cyklade jag under det ljusa halvåret, 2- 3 km bort till en å och badade mig ren. Vad roligt det blir när ni kommer! Välkomna!
Kvällskram
Drängstugan blir nog jättefin och totalt olik forna tiders drängstugor. Det där att sakna badrum, varmvatten och toalett var väl inte helt ovanligt även i min barndom. När jag var 12 år 1966, renoverades mitt föräldrahem och vi fick dessa moderniteter + oljeeldning som var det enda tänkbara på den tiden. Jag tror det var många i min omgivning som hade det så även om en del kamrater hade moderna badrum.
Ja visst blir det lite lyxigt med bäddsoffa, köksdinett med en liten kyl, bastu, vc, dusch och en liten uteplats. 1967 flyttade mina föräldrar till en stuga på landet med stor tomt, vc, dusch och en vedpanna.
Det känns roligt att det gamla kvar i minnet, nu när allt är så modernt och bra. Vi sätter värde på det nya.
Ja inte behöver man vara så gammal för att ha provat torrdass och bad i balja. Jag har bott utan toa, dusch och rinnande vatten i min ungdom. Köpte även en stuga där jag var tvungen att själv dra in vatten och bygga toa/dusch. Visst är det skönt med att allt detta finns både i bostäder och husbilen, där använder vi alltid det som finns i bilen. Trevligt med basu också, blir en fin gäst/drängstuga.
Vad roligt att höra av dig. Torrdass gick väl bra, men alla dessa telefonkataloger som användes, istället för Edets enkla och riviga toapapper. Rinnande vatten och slask har jag haft så länge jag kan minnas. Det gällde att vattnet var varmt i reservaren när badbaljan kom in.
Det blir en massa nostalgiska minnen tror jag, när jag sitter där ute i Drängstugan, tar en öl på fredagskvällen och tänker efter.