Matts har inte slutat drömma

6 05 2017
IMG_1705

Aneby Gård vid södra utfarten från Aneby mot Flisby.

Här nere slutar norra delen av Anebysjön och Svartån tar vid.

IMG_1713

Intill Aneby Gård finns Framtidsvägen.

Intill Framtidsvägen, finns också Gröna Vägen. Där har Aneby kommun investerat många tio- tals miljoner i Ekotopia, som skulle blivit en miljöutbildning. Det är historia idag. Men Framtidsvägen, vilket fint namn på en väg. HÄR vill jag bo!

IMG_1710

Vi tog med oss en kaffekorg

Brygg en kanna kaffe, så köper vi wienerbröd och bakelse på Thimons och åker ut och fikar. Vart ska du åka? frågade Birgitta. Till framtiden, sa jag.

IMG_1708

Så helt underbart stilla och vackert.

Det har bara byggts två hus här och det förvånar mig, att det inte är flera. Vem ska bli det tredje?

IMG_1714

Till vänster om grusvägen finns flera jättefina tomter.

Jag har blivit illa berörd, av alla turerna kring granntomten. Dessutom är det ännu mera arbete, att behålla den. Jag kan ibland tycka, att det är mycket det jag redan har. Huset nedan, skulle betyda fyra rum & kök, två carport, ett litet förråd samt en minimalistisk trädgård. (Vi har 9 rum & kök idag och stor trädgård)

panoramalowres_test-423x317

Aneby Hus Panorama.

Jag skrev om detta i mars 2015. Jag går fortfarande och funderar varje dag. Jag formligen älskar älskar denna ”Ekonomibyggnad”. (Ladugård) Jag vill bo nära byn, fast på landet, med cykel- & bilväg utanför dörren, ha en båtplats intill tomten barnbarnen kan fiska och bada. Här skulle jag kunna få allt, jag går och drömmer om. Kanske blir det bara en dröm.

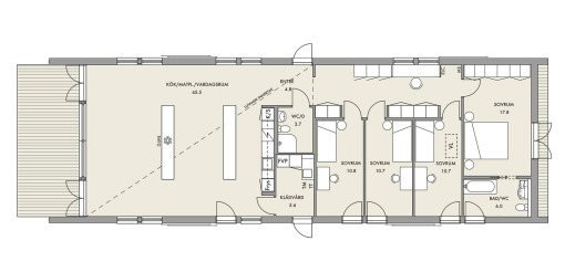
anebyhus_panorama_planlosning

Planritning.

Jag älskar planlösningen. Bara ta bort en vägg och göra ett större gästrum så är allt klart. Två carportar måste till också ute på gården

Skärmavbild 2017-05-06 kl. 16.29.30

1:727 är min dröm.

På jobbet hänger en tavla i lunchrummet med texten..

”Ger du upp, eller tillhör du de andra”. Jag tillhör de andra!


Åtgärder

Information

20 responses

6 05 2017
Profilbild för Husisblogg husisblogg

Hoppet och drömmarna ska man aldrig överge. Trevlig lördagskväll!

6 05 2017
Profilbild för Matts Torebring Matts Torebring

Så sant! Kanske har jag redan väntat för länge, väntar jag ännu längre, kanske det blir för sent. Ha en trevlig fortsättning på helgen.

6 05 2017
Profilbild för Nils-Åke Hansson Nils-Åke Hansson

Jag tillhör de andra! Litet hus har vi redan är som en lägenhet bara att låsa och åka. Detta du skriver om verkar bara bra tomten 1:727 skulle jag välja.

6 05 2017
Profilbild för Matts Torebring Matts Torebring

Vad kul Nils-Åke, då tutar vi vidare mot var sina mål. Ha en fortsatt trevlig helg!

6 05 2017
Profilbild för Margaretha Lillvik Margaretha Lillvik

Vilken härlig dröm du har….vore jag du skulle jag förverkliga drömmen utan tvekan. 😀

6 05 2017
Profilbild för Matts Torebring Matts Torebring

Vad glad jag blir, jag älskar positiva medmänniskor. Kram & trevlig helg!

6 05 2017
Profilbild för Lena & Jan Lena & Jan

Tillhör också de andra! Matts vänta ej för länge innan du tar nästa steg – då kan du bli stående på ett ben 😉
Men eftertanke är samtidigt viktigt – Ni lever redan er dröm 🙂
Fortsatt trevlig helg 🙂

6 05 2017
Profilbild för Matts Torebring Matts Torebring

Tack Lena för din optimism. Det är många pusselbitar att lägga på plats. Jag tror barnen skulle vara glada över, att slippa röja vårt nu sprängfyllda hus. Njut och ha det gott

7 05 2017
Profilbild för Henrik Alm Henrik Alm

Hej Matts,, detta har du och jag diskuterar och vad väntar du på? KÖP!
Mvh Alm

7 05 2017
Profilbild för Matts Torebring Matts Torebring

Hej & Goddag & Jag vet Henrik! Det är många frågor och beslut att fatta bara. Vi har haft vårt nuvarande hus i 27 år, vad blir skatten vid en eventuell försäljning? Helt vårt hus är i toppskick, tveksamt om det går det att sälja? Kan vi bygga lösvirke för att sänka kostnaden? Du har ju sålt och och byggt nytt, vi får höras om detaljer. Ha en skön söndag!

7 05 2017
Profilbild för Lennart Lennart

Drömmar skall man ha, bra för hälsan.

Kram

7 05 2017
Profilbild för Matts Torebring Matts Torebring

Ja så så sant! Jag en av dina drömmar!
Kram & Trevlig söndag!

7 05 2017
Profilbild för Kors och Tvärs Kors och Tvärs

Jajamen. Att drömma är viktigt och kanske det blir som reklamen säger: ”plötsligt händer det!”
Kram

7 05 2017
Profilbild för Matts Torebring Matts Torebring

Ja faktiskt kan det nog vara så, jag skulle vara glad om det blev verklighet.
Kram & Ha en god söndag!

7 05 2017
Profilbild för Rolle o Carina Rolle o Carina

Hoppas den drömmen blir sann en vacker solig dag snart!
Ni bor för stort,detta vore mer lagomt för er bägge!
Vi tillhör också de andra,vi väntar ju vår 4:e Bobil 🙂

Ha det gott o dröm gott……SolKram

7 05 2017
Profilbild för Matts Torebring Matts Torebring

Vad roligt att du är ute igen och längtar efter nya bilen. Jag hoppas att det blir genomförbart. Då kan vi kanske åka ut och fiska när ni kommer och hälsar på.
En solig majkram till er.

7 05 2017
Profilbild för Lars Permeln Lars Permeln

Jag tillhör också de andra, mina erfarenheter säger mig att man inte ska skjuta saker och ting framförsig. Om jag hade en dröm eller ide’ och min livssituation var sådan att drömmen skulle kunna förverkligas, då skulle jag inte tveka. Jag kommer ihåg husets planlösning som är inbjudande och öppen. Jag tycker att ni tillsammans ska ta en ordentlig funderare, väga för- och nackdelar, diskutera på djupet och därefter fatta ett beslut.

8 05 2017
Profilbild för Matts Torebring Matts Torebring

Tack för alla input jag fått. Jätteroligt. Läser just i Smålands Tidningen av idag: ”Aldrig för sent att bygga” säger ett par som är 75 år gamla. Jag har tagit några steg framåt. Det är ett stort beslut trots allt.

10 05 2017
Profilbild för Elisabeth Elisabeth

Drömmar är viktiga, men jag håller också med Lars P. Dröm fram något tillsammans! Kramar

10 05 2017
Profilbild för Matts Torebring Matts Torebring

Jag drömmer alltid först och efter ett tag, börjar Birgitta att drömma också.
Kram & Må gott

Lämna en kommentar